Тип присоединения: внутренняя резьба/гайка штуцерная (американка).
Тип прохода: полнопроходной.
Тип: шаровой.
Материал корпуса, штока и шара: латунь.
Уплотнение штока и шара: фторопласт – Ф4.
Температура рабочей среды: от -20 до +150 °C.
Срок службы: 30 лет.
Гарантия производителя: 10 лет.
Средний ресурс: 10000 циклов.
| Название | DN | DN | PN | Цена (сом) | ||
|---|---|---|---|---|---|---|
| бабочка | 15 | 1/2 " | 40 бар | 564 |
Количество
|
|
| бабочка | 20 | 3/4 " | 40 бар | 835 |
Количество
|
|
| бабочка | 25 | 1 " | 40 бар | 1 495 |
Количество
|
|
| рычаг | 15 | 1/2 " | 40 бар | 578 |
Количество
|
|
| рычаг | 20 | 3/4 " | 40 бар | 850 |
Количество
|
|
| рычаг | 25 | 1 " | 40 бар | 1 517 |
Количество
|
|
| рычаг | 32 | 1 1/4 " | 25 бар | 2 339 |
Количество
|
Кран шаровой латунный LD Pride для систем отопления и водопровода. Разработаны с учетом особенностей российских и кыргызских инженерных систем.

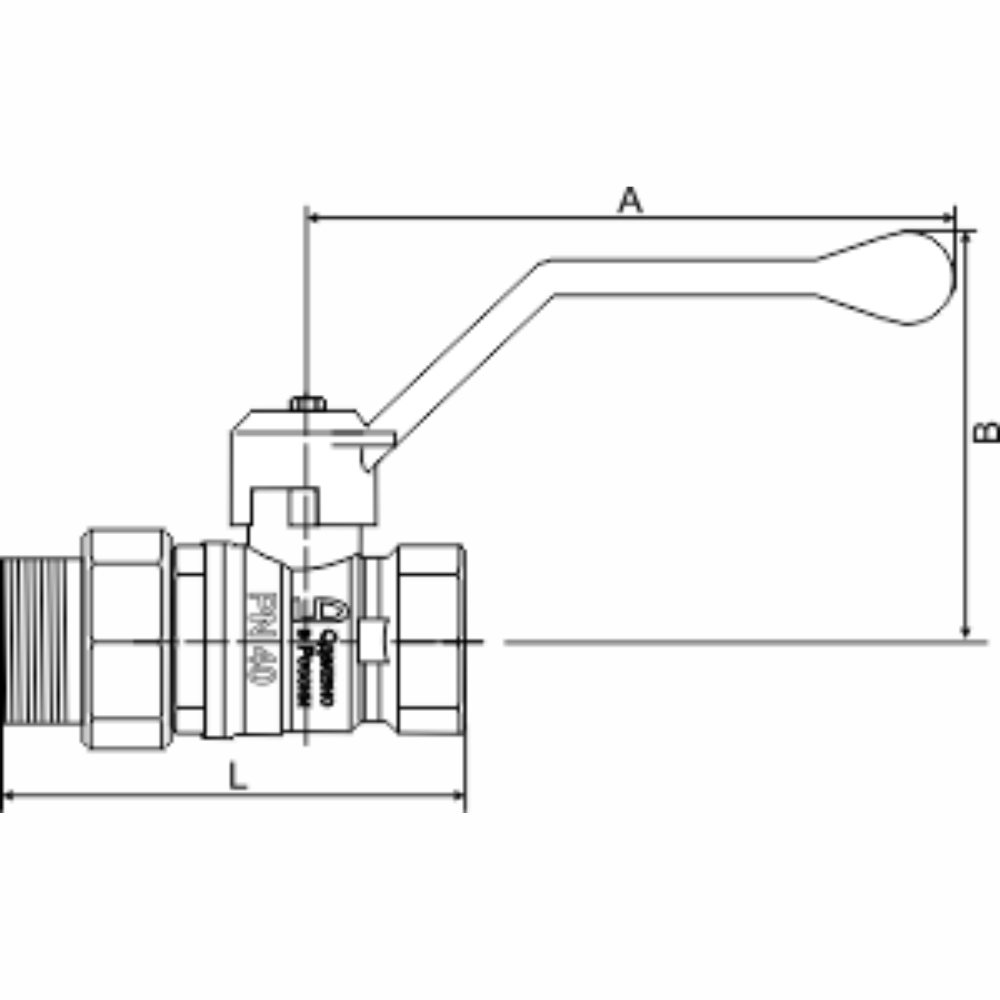
| DN | PN | L | A | B | Масса, г |
|---|---|---|---|---|---|
| 15 | 40 | 77 | 52 | 38,5 | 227 |
| 20 | 40 | 87 | 52 | 41,5 | 341 |
| 25 | 40 | 97 | 65 | 49,5 | 570 |

| DN | PN | L | A | B | Масса, г |
|---|---|---|---|---|---|
| 15 | 40 | 77 | 89 | 58,5 | 236 |
| 20 | 40 | 87 | 89 | 61,5 | 350 |
| 25 | 40 | 97 | 130 | 69,5 | 597 |
Кран шаровой латунный LD Pride предназначен для управления потоками жидких и газообразных сред, в том числе питьевой воды, сред в системах тепловодоснабжения, технологических трубопроводах, различных агрегатах.
LD Pride — производитель латунных шаровых кранов, входит в группу LD.
Накопленный опыт в производстве трубопроводной арматуры, высококвалифицированный персонал и обширный станочный парк обеспечивают высокую точность и серийность в производстве комплектующих. В результате завод гарантирует высокое качество шаровых кранов LD Pride.
Латунные шаровые краны LD Pride выпускаются на заводе полного цикла в городе Челябинск. В следствии чего предприятие получает из сырья полностью готовые шаровые краны, строго контролируя качество на всех этапах производства.
Шаровые краны LD Pride изготавливаются из латуни согласно ГОСТ 15527-2004. Корпусные детали, шаровая пробка покрыты никелем. Это обеспечивает дополнительную коррозионную стойкость и долговечность. Ручка с монтажными проушинами изготовлена из алюминиевого сплава с полиуретановой порошковой окраской.
Продукция под маркой LD изготавливается полностью из российского сырья и комплектующих.